- Yes
- No
- Elsewhere in the Italian tech tree
- Austro-Hungarian subtree in the Italian tech tree
- Elsewhere in the German tech tree
- Austro-Hungarian subtree in the German tech tree
- Other (Please elaborate in the comments!)
- I said no
Hello, and welcome to my suggestion for the battleship Ersatz Monarch.
TL;DR: The ultimate entry in Austria-Hungary’s bid for naval domination. A super-dreadnought, suspended mere days before her keel-laying but with her main 13.8” armament and armor sections built. Significantly more powerful than the preceding Tegetthoff-class and with an incredibly versatile armament, she would have been a significant Mediterranean threat for the Entente powers.
In-Depth Background:
Spoiler
As with most battleship designs in the Austro-Hungarian Empire, work began before the preceding class had been fully built or commissioned. In the case of the Ersatz Monarch and the preceding Tegetthoff-class, work began in 1910-1911. When a contract for a warship had been completed in Austria-Hungary, it caused major issues for the construction companies working on said ship. Workers would be laid off to save on money, and as such when a subsequent order was placed, there would be much fewer experienced workers, and delays in construction would begin as shipbuilders would rush to rehire previously fired workers. Škoda, the first of the major companies to finish work on the Tegetthoff-class, was eager to get another project paid for and submitted designs for 34,5cm (13.5-inch) three gun turrets in May 1911, hoping the navy would approve a new class of battleship with said armament. Luckily for Škoda, the Navy still required 4 more battleships as part of Admiral Montecuccoli’s second fleet expansion program proposed to Emperor Franz Joseph in 1909. Preliminary designs for battleships between 22,000t and 24,500t armed with said 34,5cm cannon were therefore submitted in December of 1911.
Škoda diagram for a three-gun 34,5cm turret.
Hoping to standardize with the Imperial German Navy, the caliber of said ships was increased to 35cm (13.8-inch) in early 1913. The German Navy had just laid down the first of the Mackensen-class battlecruisers with guns of such caliber, and Austro-Hungarian logistics would be greatly improved if a common shell diameter could be used by both navies. Shortly after this, on the 22nd of January 1913, Admiral Montecuccoli stepped down from his position as Marinekommondant. Just shy of reaching 70, he was the most decorated admiral in the history of the Austrian/Austro-Hungarian Navy. His replacement, Admiral Haus, would successfully see his wishes for an enlarged Austro-Hungarian Navy through, albeit with a slight bit less social skill. For the time being, however, his biggest hurdle was getting the Dual Monarchy’s parliaments to fund the warships. Haus had easily secured the endorsement of almost everyone necessary to pass funding for the vessels - excluding, of course, the Hungarian Parliament.

Austro-Hungarian Admiral Anton Haus.
Purchasing the Warships
Notorious for their pushback against naval expansion, Admiral Montecuccoli had skirted the issue of the Hungarians by not only approving the ships while the Hungarian parliament had temporarily collapsed, but also without full funding, with the construction companies taking the contracts at their own risk. Early in 1913, about a month after Haus had been appointed admiral, Archduke Franz Ferdinand’s chief of staff, Carl von Bardolff, came to speak with him. Franz Ferdinand was a major supporter of the navy and its expansion, and as Haus was informed, requested a second dreadnought division in the navy be built. If it had to be done though extralegal means, as Montecuccoli had done, he had full permission to do so. Stabilimento Tecnico Triestino (shipyard), Škoda (armaments manufacturer), and Witkowitz Ironworks (armor manufacturer) all offered to take similar contracts to the 1910 ones, once again at their own risk. Haus did not wish to skirt his source of funding and so directly told the Council of Ministers in May 1913 about the plans for new capital ships. As such, he lost his opportunity to get the warships started quickly as the Prime Minister of Hungary, László Lukács, threatened to resign if warships were ordered before budgetary approval. Haus would just have to hope that the support he had was enough.
Thankfully for Haus, the support he had was enough. After taking the plan back to the Council of Ministers in the fall of 1913, Haus was granted permission to build such vessels, even though he had not actually included them in the 1914 budget proposal. This sudden success is most likely due to the fact that Lukács had fallen from power and had been replaced by the pro-navy István Tisza as prime minister. Waiting until early 1914 to propose his new 426.8 million Kronen budget (which also included a new class of 5,000 ton scout cruisers), Haus managed to convince most pro-navy politicians to argue vocally for the budget. German Nationalist Albert von Mühlwerth led with the argument that “if my coat is old and threadbare, I buy myself a new one… It is the same with warships.” Karel Kramář, leader of the Young Czechs, stated that they were “happy when Škoda has business”, even if Škoda and Witkowitz had an unfortunate and complete monopoly over the economy in Bohemia and Moravia. (Something interesting of note, the German Nationalists and Young Czechs argued on the reasoning for the warships - Count Heinrich Lützow argued that “every supporter of the Triple Alliance… must vote for the strengthening of our navy”, to promote Mediterranean strength in the face of Imperial Russia. Kramář argued that while a strong navy was important, they should not view the Russian fleet as their main rival, and instead contest with Italy.)
By 1914, the passing of the budget was all but guaranteed. The once staunchly anti-navy Hungarian Delegation passed the budget in about 15 minutes - simultaneously suggesting programs to incentivize further steamliner orders from Hungarian dockyards. According to Lawrence Sondhaus, the Austrian delegate Otto Lecher commented that the two Delegations “appeared to be engaged in a contest to see which could approve the navy budget the fastest”. Multiple newspapers, even historically prominent anti-naval expansion ones like the Vienna Daily, agreed that a strong navy was necessary to protect Austro-Hungarian interests in the Mediterranean and to keep one of the “main arteries” of the Empire alive. The Navy newspaper Die Flagge (The Flag) issued a paper with possibly the most famous statement in relation to the warships - “The Monarch-class must be replaced!” With the support and money finally acquired, Haus ordered the ships from Stabilimento Tecnico Trieste and the Hungarian yard of Ganz-Danubius, for around 82 million Kronen each - approximately 20 million Kronen more than the preceding Tegetthoff-class.
Designing the Warships
One of the many reasons for Škoda’s supposed success in promoting construction of a new battleship in May of 1911 was due to the fact that preliminary design work was already set to begin as early as a conference on the 24th of June 1911. The well-known Oberster Schiffbauingenieur (Head Shipbuilding Engineer) Seigfried Popper had retired from the Navy’s private design team (Marine-Technisches Komitte, or MTK) at this point and had been working on designs at Stabilimento Tecnico Trieste. His post in the navy was filled by the up-and-coming naval architect Franz Pitzinger, who headed the conference. Although not nearly as accomplished as his predecessor, Pitzinger had significant responsibilities in the design of the Radetzky-class and Tegetthoff-class, which garnered him a fair amount of respect. Only two designs were produced at the June 1911 conference, with both being designated “vergrößerten Typ IV” (“enlarged Type 4”, Type 4 being a designation for the under-construction Tegetthoff-class). The two designs were slightly varied in size and main armament:
- Design A: 22,000t, 12 x 30,5cm cannon
- Design B: 23,000t, 10 x 34,5cm cannon
but shared the same basic additional armament layout of 18 x 15cm cannon, 24 x 7cm cannon, and 5 x 53cm torpedo tubes. Several unique proposals for other aspects of the ship were offered during this meeting too - vanadium steel in the torpedo wall, the use of diesel engines alongside steam turbines, and dual mounted casemates - but these were both shot down for various cost and production reasons.
Austro-Hungarian battleship SMS Tegetthoff. Design A would have been merely an enlarged version of this design.
These preliminary designs were developed over the following months. In March of 1911, tailing a series of preliminary calculations, two requirements for designs were drafted. The most notable features were the use of either 8 x 34.5cm or 35.5cm (14-inch) guns and the use of a raised forecastle. This was a turnaround from the previous designs and previous battleships, whose flush deck reduced overall tonnage but also reduced overall seakeeping. The anti-torpedoboat armament of 7cm (actually 66mm) was at this point switched over to a larger 9cm (actually 88mm) design. These overall requirements were distributed to 4 major groups - the shipyards Stabilimento Tecnico Triestino (STT), Cantiere Navale Triestino (CNT), and Ganz-Danubius, as well as to the MTK. Less than a month later, Škoda finished and delivered designs for all-angle-loading 34.5cm twin turrets to the shipyards in order to help with their design process, but did not deliver any designs regarding the 35.5cm. Due to this, when the shipyards met in late May to present designs, almost all of the 25 designs were armed with eight of the 34.5cm guns and ranged in displacement from 23,400t to 27,000t. One of the most varied features was the depth and size of the torpedo bulkhead - this would reappear later down the line of the design process.
By late June 1912, a board of Navy officials met to examine the submitted designs. Since Admiral Montecuccoli had not passed a naval budget with funds for new warships yet, the design team considered the current submissions too small for the projected construction date, and gave the shipyards a new set of requirements. The new minimum displacement would now be 24,500t and ships would have to be armed with a minimum of 10 x 35cm (the 34.5cm and 35.5cm were switched to this caliber for reasons stated previously), and a minimum speed of 21 knots. Out of the submissions, the two that survived to present day were those by MTK and Ganz-Danubius. As with previous designs, the major difference was the torpedo defense system and bulkhead. MTK’s design was nearly identical to that used on its previous submissions, while Ganz-Danubius’ design featured a “second, internal double-bottom”. Both incorporated a difference from the Tegetthoff-class - a lack of watertight doors in the now reinforced bulkheads - which raised torpedo resistance by 4 times. On April 19th, 1913, Admiral Haus and a board of Navy officials rejected all proposals from the shipyards and gave full control of the design to Oberster Schiffbauingenieur Pitzinger and the MTK.
One of the proposed 32,000t designs.
After several additional requirements were given to the MTK (as well as a request for a sketch of a 29,000t and 32,000t design), Pitzinger presented his near final design on August 4th, 1913. Several more design tweaks were added before the costs were approved by the Council of Ministers in October 1913, at which point debates with the shipyards as to price of construction began. After a particularly heated debate on December 1st, 1913, detailed work on the full construction plans began. Once again, several design tweaks were added over the following months, and with additional armor added at the sacrifice of some of the 15cm cannon, the design was ready for construction. The only remaining factors were the approval of the delegations - which came in May of 1914 - and the results of the underwater test.
Ordered in September 1913 for under a million Kronen, the “underwater test” was a section of torpedo bulkhead from the chosen design, complete with belt armor and true to the plans. A 45cm torpedo warhead, filled with 110kg of Amatol, was fixed to the side below the waterline. To replicate the 15cm casemate magazines, boxes of explosive, propellants, and other munitions were added on the inner side of the bulkhead. The 133t block was built in Pola in late spring of 1914, and towed out to sea on June 10th. It was observed and filmed by the MTK from a nearby dock. A 70-meter tall splash was observed, and the target sank within 28 minutes. It was raised on June 15th, and thoroughly inspected and reported on by July 3rd - although Admiral Haus was probably informed on the same day as it was raised. The test was a complete success: the internal bulkhead remained completely watertight, the munitions were undisturbed, and aside from a small dent in the coal bunker there was no internal damage. Due to this good news, the final design was approved and ordered on July 1st - the exact date that Archduke Franz Ferdinand was assassinated in Sarajevo.

The 1:1 scale “Underwater Test” before the torpedo simulation. Note the explosive on the left side being lowered into place.
The death of the Archduke, and subsequent war on Serbia, was the killing blow to the new warships. Despite the bleak looking future, construction still progressed for a limited time, with several of the main guns being built, as well as armor sections. In the end, however, the project was suspended and eventually cancelled to hopefully be revived after an Austro-Hungarian victory in the war - an end that never appeared for the Dual Monarchy. The guns themselves outlived everything else related to the warships. The first gun, Rohr Nr. 1, was built specifically for the warships and preliminary testing. Subsequent guns were manufactured, but with no end to the war in sight, resources had to be repurposed. Modifications of the manufactured 35cm G. L/45 K14 cannon resulted in the impromptu 35cm L/45 M16, for use in land combat. In addition, however, sections of the barbette armor were additionally produced. The fates of these were to be used for testing against 305mm AP shells.
One of the 35cm naval cannon being produced in a Škoda factory.
Construction:
Builder: Stabilimento Tecnico Triestino and Ganz-Danubius Shipyard
Ordered: July 1, 1914
Laid down: n/a
Launched: n/a
Commissioned: n/a
Complement: 1160 (38 officers, 16 NCOs, and 1106 enlisted men).
Length: 175m (574ft 2in)
Beam: 28.5m (93ft 6in)
Draft: 8.4m (27ft 7in)
Displacement: 24,517t Standard, 26,460t Full Load.
15 Yarrow water-tube boilers (9 coal-burning, 6 oil-burning).
4 steam turbine engines, leading to 4 propeller shafts.
Speed & Power: 31,000 total SHP, 21.6 knots maximum speed.
Range: 6,000 nautical miles (11,120km) at 10 knots (1,425t of coal, 1,035t of fuel oil).
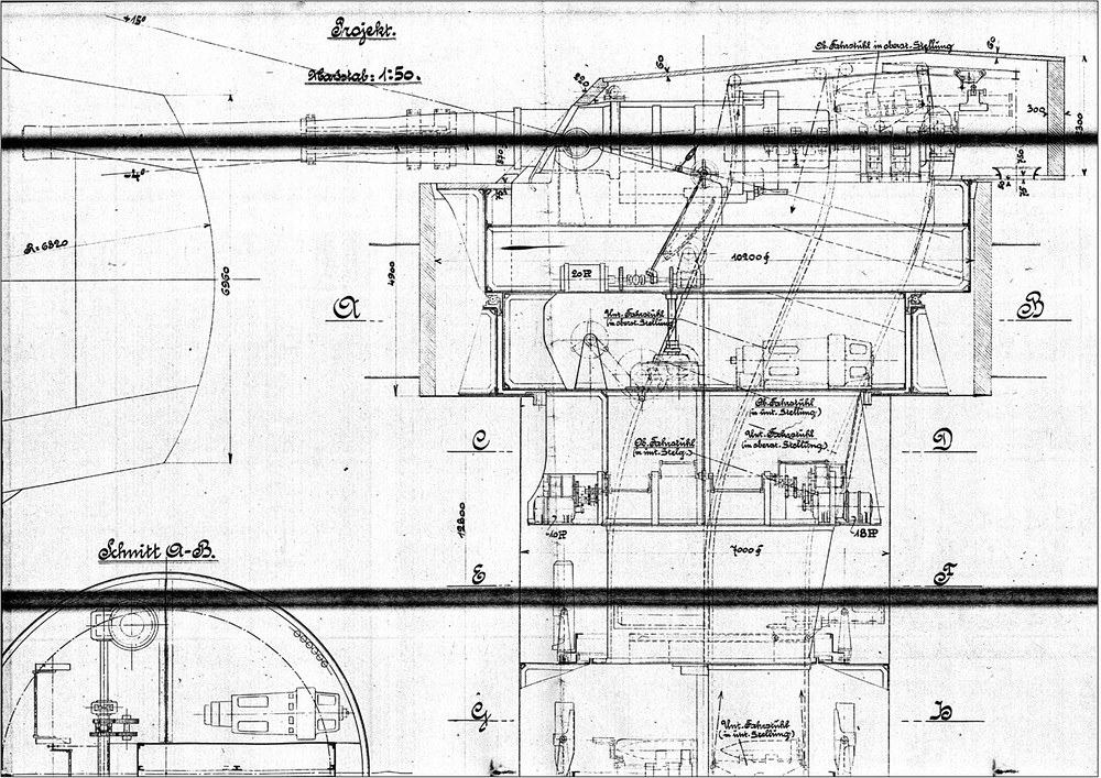
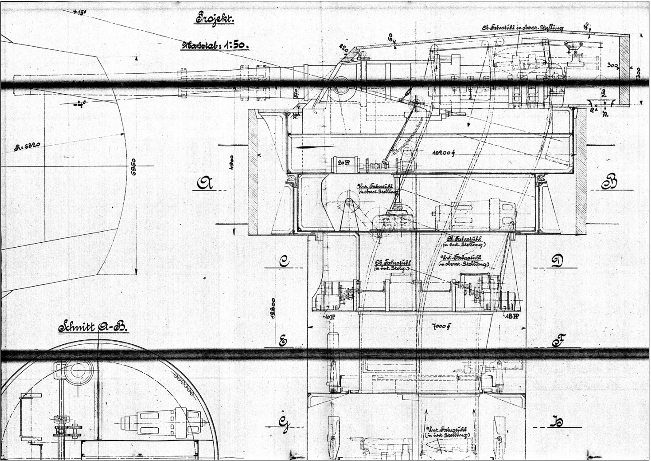
An engine room layout of the Ersatz Monarch.
Armor:
Main Belt: 180-310mm.
Twin turrets: 340mm front plate, 250mm sides, 80mm roof.
Triple turrets: 340mm front plate, 300mm sides, 80mm roof.
Barbettes: 320-110mm.
Secondary Battery and Upper Belt: 150mm.
Conning tower: 320-280mm, 110mm roof.
Deck: 36mm upper deck + 36mm armored deck.
Underwater protection: Double bottom, 36mm torpedo bulkhead spaced behind torpedo bulkhead and belt.
Other: Coal bunkers backing belt armor.
Armor layout of the Ersatz Monarch.
Armament:
10 (2x3, 2x2) 35cm/45 K14 Škoda, 76 rounds per gun carried, 760 rounds total.
14 (14x1) 15cm/50 K10 Škoda, 225 rounds per gun, 3,150 rounds total.
8 (8x1) 9cm/45 Škoda TAG, 400 rounds per gun, 3,200 rounds total.
12 (12x1) 9cm/45 K12 Škoda BAG, 550 rounds per gun, 6,600 rounds total.
6 underwater torpedo tubes, 53.3cm L7.18 Whitehead wet-heater torpedoes, 32 torpedoes total
Armament Specifics:
Spoiler
- 35cm G. L/45 K14 Škoda:
Shell diameter: 349.5mm (13.76-inch)
Shell types: APC, Light AP/Common, SAPC Type 1, SAPC Type 2.
Shell specifications:
- APC: “35cm bekappte Panzergranate 5.25crh” - 635kg, 129.16cm long, 10.9kg TNT bursting charge.
- “Light” AP/Common: “35cm Einheitsgranate 5.25crh” - 635kg, 18.5kg TNT bursting charge.
- SAPC Type 1: “35cm bekappte Zündergranate Projekt I 5.25crh” - 635kg, 150cm long, 42.5kg TNT bursting charge.
- SAPC Type 2: “35cm bekappte Zündergranate Projekt II 5.25crh” - 635kg, 146.93cm long, 37.7kg TNT bursting charge.
Maximum range: 21,000m at 16 degrees elevation.
Penetration (using DeMarre and Austro-Hungarian calculations):
- APC: 710mm at 0m, 590mm at 5,000m
- “Light” AP/Common: 658mm at 0m, 550mm at 5,000m
- SAPC Type 1: ~450mm at 1,000m
- SAPC Type 2: ~450mm at 1,000m
Note: All shells were AP capped and ballistic capped.
Velocity: 820m/s
Reload: 2 rounds per minute.
Mountings: Two-gun and three-gun turrets, firing angles of -4/+16 degrees.
One of the 35cm cannon after being modified for land warfare use.
- 15cm G. L/50 K10 Škoda:
Shell diameter: 149.1mm (5.9-inch)
Shell types: AP, HE
Shell specifications:
-AP: “15cm Panzergranate” - 45.5kg, probably ~900g bursting charge.
-HE: “15cm Sprenggranate” - 45.5kg, 3.0kg TNT bursting charge.
Maximum range: 15,000m at 15 degrees elevation, with AP shells.
Penetration: (using DeMarre)
-AP: 294mm at 0m
-HE: N/A
Velocity: 880m/s
Reload: 6 rounds per minute.
Mountings: Single-gun casemates, firing angles of -6/+15 degrees.
A surviving Škoda 15cm preserved in Italy.
- 9cm G. L/45 Škoda TAG and 9cm/45 K16 Škoda BAG:
Shell diameter: 90mm (3.54-inch)
Shell types: Common, HE
Shell specifications:
Common: “9cm Einheitsgranate” - 10.2kg, ~?kg of TNT
HE: “9cm Sprenggranate” - 10.2kg, ~1.5kg of TNT
Maximum range: 12,300m
Penetration: N/A
Velocity: 780m/s
Reload: 11 rounds per minute.
Mountings: Single-gun swivel mounts on deck and turrets,
TAG: firing angles of -10/+20 degrees
BAG: firing angles of -6/+90 degrees
(Note: TAG was the abbreviation used for “Torpedoboot-Abwehr Geschütz” - “Anti-Torpedoboat Gun”, and BAG was the abbreviation for “Ballon-Abwehr Geschütz” - “Anti-Airship Gun”)
A diagram of the 9cm Torpedoboot-Abwehr Gechütz.
- 53.3cm L7.18 Whitehead Torpedo
Torpedo diameter: 533mm (21-inch)
Torpedo specifications:
- 1590kg, 7.18m long, 180kg TNT explosive charge.
Maximum range: 1,000m at 41 knots (75.9km/h) or 10,000m at 36 knots (66.7km/h).
Reloads:
- 6 torpedoes per tube for broadside; one in the tube and 5 spare reloads.
- 4 torpedoes per tube for centerline; one in the tube and 3 spare reloads.
Mountings: 6 single tubes, 2 mounted on each broadside, 1 mounted on the bow, and 1 mounted on the stern.
Additional Pictures:
Spoiler
The final completed design of the Ersatz Monarch.
A comparison image between the “improved Type Tegetthoff” (Ersatz Monarch) and the Tegetthoff-class.
A cross-section plan of the Ersatz Monarch.
A hull-form plan of the Ersatz Monarch.

Several photos of a full-hull model of the Ersatz Monarch. Photos from viribusunitis.ca
One of the 40,000t floating drydocks planned to be built for the Ersatz Monarch.
Yours truly,
KewlPangolin
Sources:
NavWeaps - Austro-Hungarian Naval Guns
NavWeaps - Austro-Hungarian Torpedoes
Viribus Unitis - Improved Tegetthoff Class (Ersatz Monarch)
Austro-Hungarian Battleships and Battleship Designs: 1904-1914 by Mihály Krámli, 2018
Kreuzer und Kreuzerprojecte der k.u.k. Kriegsmarine, 1889-1918 by Erwin Sieche, 2002
The Naval Policy of Austria-Hungary, 1867-1918 by Lawrence Sondhaus, 1994
Quick Note! There are debates over the appropriate name to call the class. Most documents refer to the class themselves as the “verstärker Tegetthoff-class” (Improved Tegetthoff-class, lit. “strengthened Tegetthoff-class”) or as the “Schlachtschiff von 24,500t Displacement” (Battleship of 24,500t Displacement). The individual ships themselves however were known as either Schlachtschiff VIII-XI or Ersatz (ship intended to be replaced), so in the case of Schlachtschiff VIII, “Ersatz Monarch” - hence the name most know these ships by.
















